Corredera

Disponemos de los siguientes tipos de mallorquinas correderas

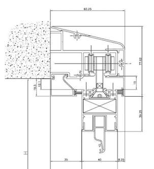
Mallorquinas correderas con la posibilidad de lamas fijas o lamas orientables. Dichas correderas corren sobre muro mediante monocarriles superpuestos en la pared. La serie permite realizar mallorquinas de una y dos hojas móviles, estas últimas plegando a ambos lados de ventana. Sorprende la gran calidad de las terminaciones y remates a pared.

Scroll al inicio